Bouwgarant logo

L-vormige aanbouw op achter- en zijgevel in Acquoy

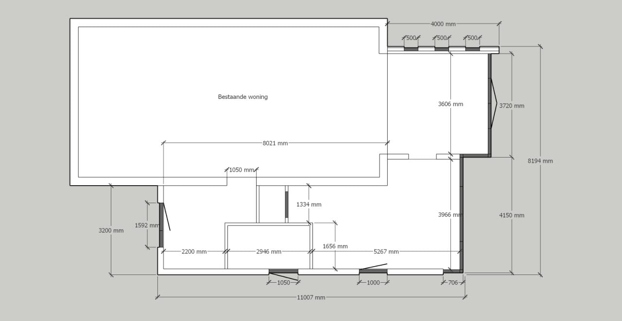
Aanbouw

Met een standaard aanbouw is het vrij snel duidelijk wat er moet gebeuren. Maar als het een tandje groter wordt zoals hier komt er meer bij kijken. De bestaande garage die aan de zijkant van het huis stond is geheel gesloopt en deze prachtige aanbouw kwam daarvoor terug.

Samen met opdrachtgever zijn we tot dit mooie ontwerp gekomen. De samenstelling van materialen, indelingen, het lichtplan en ga zo maar door. Habrobouw voert niet alleen uit maar creëert ook. Met creatieve ideeën  proberen we ons enthousiasme over te dragen op onze klanten.
Wat opvalt is het grote glas op de achtergevel. Met uitzicht over de landerijen is deze wens begrijpelijk. Het binnen- en buitenleven komt zo wel heel dicht bij elkaar!
Het resultaat van deze verbouwing is enorm. De woning is getransformeerd naar een royale living. Aan de zijgevel is een schuur geïntegreerd en met het voorste gedeelte van de aanbouw is de hal vergroot. Alles ruimtes zijn hiermee royaal geworden op de begane grond!

 

Geïnteresseerd?
Schroom niet om contact met ons op te nemen!

Reviews van klanten

Klanten geven Habrobouw gemiddeld een 9.3/10 uit 137 beoordelingen vanuit FeedbackCompany.

Klanten geven Habrobouw gemiddeld een 4.8/5 uit 55 beoordelingen vanuit Google Reviews.

10/10
15-01-2024
Maikel Zuidmeer
Wij hebben zeer goede ervaringen met Habrobouw. Ze hebben bij ons een mooie aanbouw gemaakt waar een flinke staalconstructie in moest. Alles is mooi afgewerkt en de prefab onderdelen stonden in een dag.
10/10
20-12-2023
Michel Puijpe
Prima ervaring, duidelijke planning en houden zich hieraan. Goed bereikbaar via telefoon of whatsapp bij vragen.
10/10
05-07-2023
Ghoerahoe
Heel fijn om mee samen te werken, goed personeel en goed bereikbaar en denkt in alles mee!!
9/10
15-03-2023
Paans
Goede communicatie. Meedenkende medewerkers

Gerelateerde projecten